Nachrichten aus Nordhausen und der Region - regional, schnell, kostenlos, super digital
Kontakt
Login
suchen
News
News
Überblick News
Archiv
Amtliche Bekanntmachungen
Umfragen
Sudoku
Suche
Termine
Termine
Überblick Termine
Termin melden
Kino Nordhausen
Kino Bleicherode
Markt
platz
Markt
platz
Überblick Kleinanzeigen
Traueranzeigen
Login
Registrieren
FAQ
AGB
Jobs
Jobs
Überblick Stellenangebote
Stelle melden
Web
cam
Kontakt
Kontakt
Kontaktformular
Barriere melden
Impressum
Datenschutz
eic
kyf
msh
nnz
uhz
tv
nt
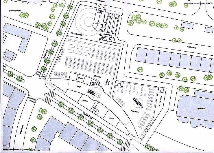
nnz-doku: Grundrisse
← zurück
Bild 4 von 4
weiter →
Erdgeschoss
zurück zum Artikel
zum Nachrichtenüberblick
Alle Texte, Bilder und Grafiken dieser Web-Site unterliegen dem Urheberrecht. Weiterverbreitung nur mit schriftlicher Genehmigung von nnz-online.de.
Anzeige symplr (mr_2)
Vorschau
Anzeige symplr (bb_2)