Axel Heck hat die ehemaligen EATON-Hallen gekauft
Die Zukunft nach Nordhausen holen
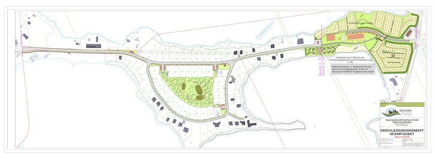
← zurück Bild 1 von 2 weiter →
Der komplette Flächenplan für die Seelano-Anlage (Foto: Heck Immobilien)
Alle Texte, Bilder und Grafiken dieser Web-Site unterliegen dem Urheberrecht. Weiterverbreitung nur mit schriftlicher Genehmigung von nnz-online.de.

